DIETZ: 4-Zimmer Eigentumswohnung in Nilkheim! Mit Balkon, Tiefgarage und Aufzug!
63741 Aschaffenburg, Etagenwohnung zum Kauf
Referenz
Dieses Objekt wurde bereits erfolgreich vermittelt.
Kontaktdaten
-
FirmaBettina Dietz Immobilien GbR
-
AdresseAmtsgasse 2
64832 Babenhausen -
Tel. Zentrale
-
Fax(06073) 72357-10
Objektbeschreibung
Beschreibung
Diese ideal aufgeteilte 4-Zimmer-Wohnung befindet sich im 3. Obergeschoss und ist über den Personenaufzug zu erreichen.
Das Highlight der Wohnung ist der herrliche Balkon mit Weitblick und SÜD-OST-Ausrichtung. Man hat sogar einen Blick aufs Aschaffenburg Schloss (Johannisburg) sowie einen kleinen Blick auf den Main!
Die Wohnung verfügt in allen Zimmern über Echtholzböden (ebenfalls unter dem neuen Teppichboden im Wohn-/Essbereich). Im Wannenbadezimmer gibt es 2 neue Waschbecken und eine neu Badewanne inklusive Armaturen! Alle Wandbeläge wurden erst vor 1 Jahr neu renoviert. Auch wurden alle Elektro-Abdeckungen durch modernere ausgetauscht (Marke: GIRA).
Das Hausgeld beträgt 419,-€/mtl. inklusive Rücklagenzuführung, Hausverwaltungskosten und Hausmeister!
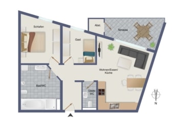
A U F T E I L U N G
* Wohn- und Esszimmer
* 3 Schlafzimmer
* Küche inkl. Einbauküche
* WC für Ihre Gäste
* Eingang, Garderobe
* Wannenbadezimmer
* Großer SÜD-OST-Balkon
Zur Wohnung gehört eine eigener Kellerraum. Ihre Waschmaschine findet in der gemeinsame Waschküche im Untergeschoss Platz (mit Aufzug erreichbar). Ebenfalls gibt es hier einen gemeinsamen Fahrradraum.
Sie sind interessiert? Dann vereinbaren Sie JETZT Ihren persönlichen Besichtigungstermin!
Ausstattung
Einbauküche inkl. (1 Jahr alt)
Wohnung komplett neu gestrichen (1 Jahr alt)
Neue Elektrikkappen (Marke GIRA)
Balkon SÜD-OST-AUSRICHTUNG + Weitblick
zzgl. 15.000,-€ Tiefgaragenstellplatz
Eigener Kellerraum
Gemeinsame Waschküche
Gemeinsamer Fahrradraum
Gemeinschaftlich genutzter Garten
Kabel-Anschluss
Lage
Ruhigere Lage am Rande des Wohngebiets in einem 18-Parteienhaus in Aschaffenburg - Nilkheim
Ca. 800m vom Schönbusch entfernt!
Nilkheim ist ein Stadtteil der kreisfreien Stadt Aschaffenburg mit 5.893 Einwohnern (2007) und gehört zum Regierungsbezirk Unterfranken im Freistaat Bayern der Bundesrepublik Deutschland.
Der Stadtteil liegt auf der linken Mainseite. Es grenzt im Süden an Niedernberg im Landkreis Miltenberg, im Westen an Großostheim und im Norden an Stockstadt am Main im Landkreis Aschaffenburg sowie an die Stadtteile Leider und Obernau der Stadt Aschaffenburg.
Dieser Aschaffenburger Stadtteil erfreut sich zunehmender Beliebtheit. Nilkheim vereint Arbeiten und Wohnen. In den Gewerbegebieten sind viele bedeutende Aschaffenburger Firmen angesiedelt.
Im Stadtzentrum Geschwister Scholl Platz gibt es alle Einkaufsmöglichkeiten des täglichen Bedarfs, Banken sowie Restaurants und Cafes.
Nilkheim verfügt über 2 Kindergärten und eine Grundschule.
In unmittelbarer Nähe befindet sich der Freizeitpark Schönbusch mit seinen Erholungsmöglichkeiten und Tennis- und Sportanlagen.
Über die in wenigen Minuten erreichbare B469 sowie A3 sind die umliegenden Großstädte sehr gut erreichbar.
Sie sehen gerade einen Platzhalterinhalt von Google Maps. Um auf den eigentlichen Inhalt zuzugreifen, klicken Sie auf die Schaltfläche unten. Bitte beachten Sie, dass dabei Daten an Drittanbieter weitergegeben werden.
Mehr Informationen63741 Aschaffenburg, Deutschland (auf Google Maps ansehen)





























